日本庭院式住宅,超美
来源:新微设计 ID:land-2013
如有版权问题,请联系删除
今天整理了3个不错的日式庭院住宅
来自于日本奥野崇建筑设计事务所
该事务所擅长运用简单的建筑材料
构建典型的日式设计
非常值得学习借鉴
快来一睹为快吧
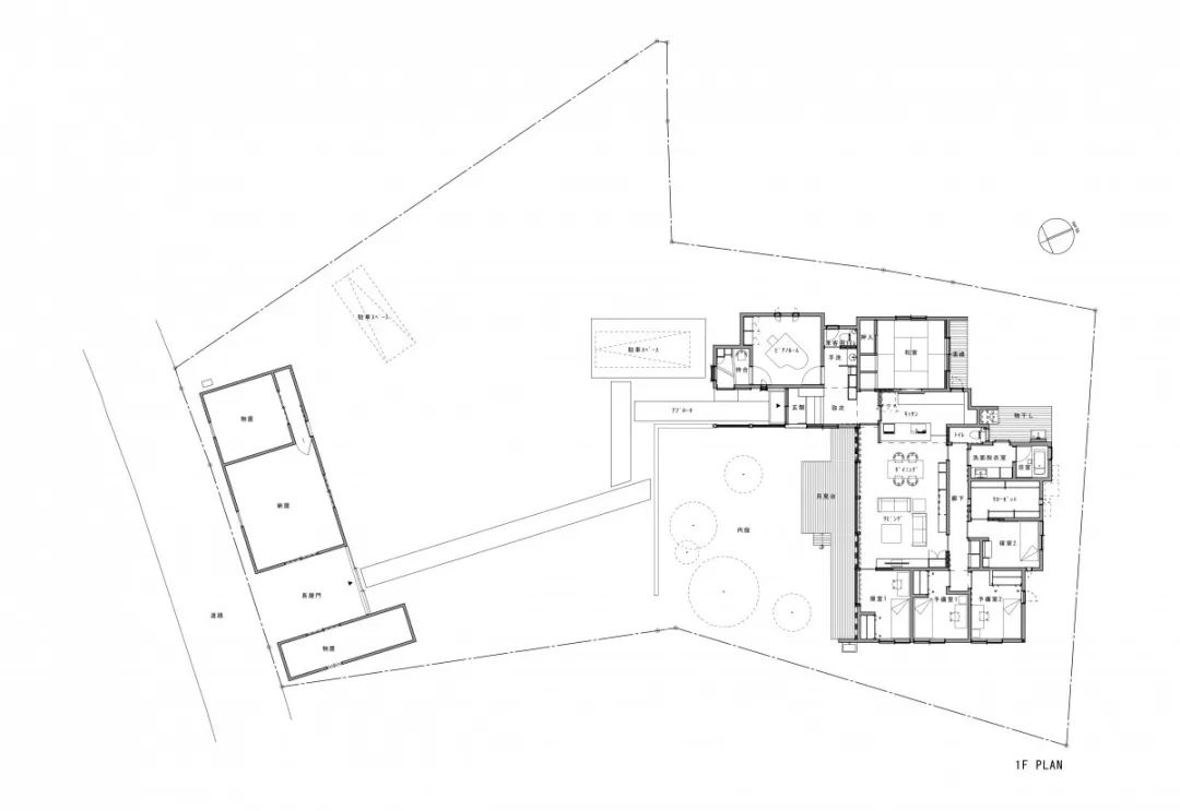
有钢琴教室的房子
房子的女主人是一位钢琴老师、也会经常提供那些与爱犬生活在一起的老年人住处,让让他们在繁忙的工作告一段落后,能够与家人、爱犬悠闲的过日子中度过。
另外,如何使女主人经营的钢琴教室和居住部分共存,并保持各自的独立性成为了重要的主题。
设计师在有宽裕的用地中,在环境最优美的地方设立了起居室。
房子通过大开开的开口部,能有效利用外部空间,保持空气流通,心情愉悦。
起居室的北侧有可以遥控的高侧面灯,所以能吹来令人心情舒畅的风。
设计师保持了房子入户依次到厨房、钢琴教室、客厅和客人用的日式房间,紧凑而流畅。
厨房根据女主人常走的动线设计,便于料理家务、使用。
退休以后,有了更多的时间在今后与家人和爱犬一起生活。
房间夜景
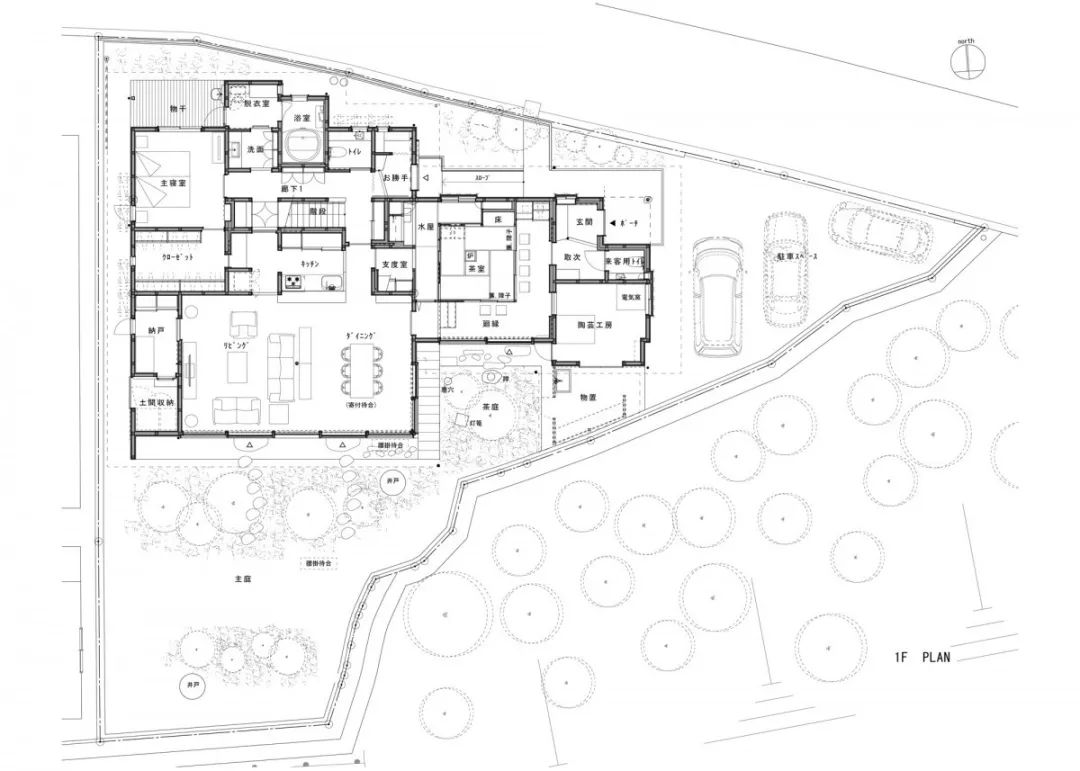
立礼茶室的家
这个拥有立礼(坐在椅子上表演的茶道)茶室的住宅位于松山附近一个安静的居民区内。
历史上,松山的领主曾经隐居于此地。我们的委托人在茶道的影响下成长。
为了保证委托人在晚年也可以使用茶室,设计师在空间设计上采用了有序的通行路线,客人可以坐在椅子上喝茶。这个住宅的设计主题就是如何让客厅和茶室融洽地共享空间。
茶室可以根据需要而改变。障子(由纸覆盖的木格板)分割茶室,由此可得到4.5张榻榻米床垫大小的房间。
当障子被移开时,这个空间便成带椅子的大房间。通过百叶窗的升降,你可以创造出一条走廊或者可供客人坐下的额外空间。
为了使用起来更加便利,厨房和茶室之间的距离被安排的很近。
由于宽屋檐下的橼暴露在外,客厅和餐厅变得很宽阔。挑高的天花板将这个空间与二楼相连。二楼的窗较高,用于通风。
甚至在不需要空调的几个月里或者风量较小的日子里,重力通风也可以创造出可以在空间内循环的气流。
在思考如何将传统和现代的生活结合起来的同时,设计师也在琢磨怎么在忠于合同规定的情况下,让这个空间可以被持续使用。
建筑师:奥野崇建筑设计事务所
地址:日本 主创建筑师 奥野崇
建筑面积:234.0 平方米
项目年份:2017
摄影师:Shigeo Ogawa
厂家:Galvalume
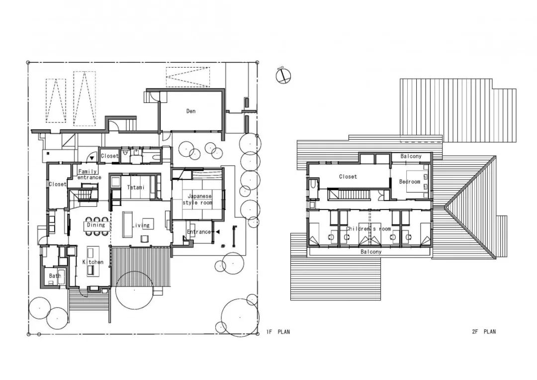
育儿之家
该项目的主人有三个孩子,照料孩子十分忙碌,为了应对这个需求,设计师高效地设计了两层住宅中的动线,缩短移动的距离,以减轻屋主生活起居上的负担。
L形的花园使家庭享有很大的自由空间。大门、小径、门厅以及铺有榻榻米的起居室都可以作为招待客人的空间。
起居室开敞而富有活力,室内有装饰性的梁,餐厅和厨房区域的天花板以芦苇杆覆盖,给人以自然、沉静之感。
榻榻米室被用作招待重要的访客,温馨舒适。
住宅对于家庭来说是一个放松而和谐的场所,同时享受天伦之乐。
这个住宅的设计囊括了夫妇对住宅的美好愿景:打造成一个家庭享受天伦之乐、来访亲友备受敬重、人与人之间常怀感恩之心的地方。
这个家实现了所有夫妇的梦想。
2017年01月竣工摄影小川重雄
文章仅用于学习交流,版权归原作者所有,如有问题,请及时与我们联系,我们将第一时间做出处理。
免责声明
1. 本网中刊登的文章、数据的版权仅归原作者所有,原创文章由筑脸网编辑整合,转载请注明筑脸网出处。
2. 转载其它媒体的文章,我们会尽可能注明出处,但不排除来源不明的情况。网站刊登文章是出于传递更多信息的目的,对文中陈述、观 点判断保持中立,并不意味赞同其观点或证实其描述。
3. 如您对文章内容、版权或其他问题持有异议,请与筑脸网资讯频道联系,我们第一时间删除。
联系电话:0575-85226189
邮箱:2331648090@qq.com
























































